Ricerca

Appartamento in Vendita a Biella

Zona centroCentro
90 mq 2 Camere 1 Bagni Stampa

Classe energetica

F

  EP glnr: 165.03 kwh/m²

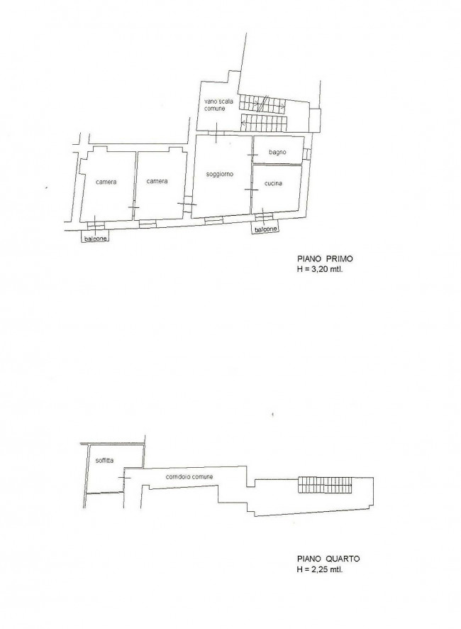
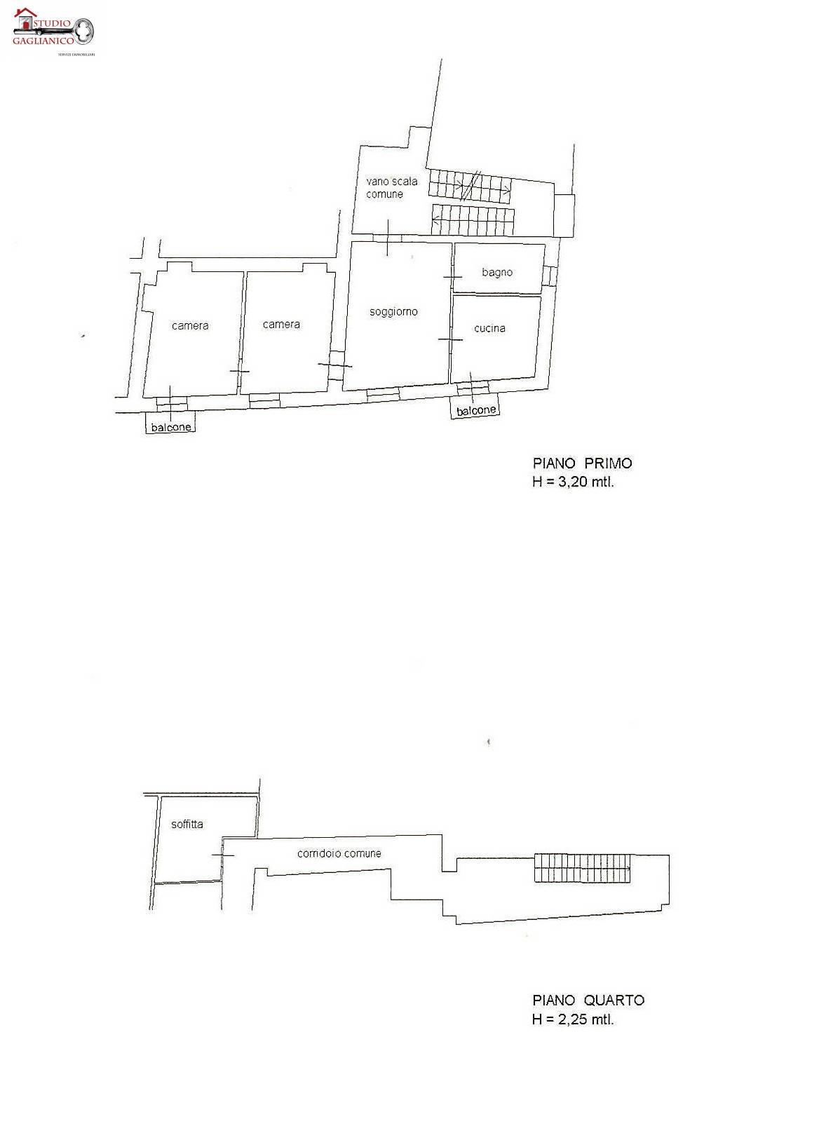
Appartamento al piano primo, ristrutturato recentemente, composto da ingresso in soggiorno, cucina abitabile, due camere da letto e bagno con doccia, oltre ai due balconi che affacciano su Via Italia. La ristrutturazione comprende sia l'impiantistica elettrica che idraulica, il bagno, i serramenti esterni in legno con doppi vetri, la porta di ingresso blindata ed insonorizzata e le porte interne scorrevoli, in stile inglese. La pavimentazione della zona giorno e delle camere è in parquet di legno di ulivo. Riscaldamento autonomo con caldaia a condensazione sostituita cinque anni fa. A corredo una soffitta ampia.

Cod.: 539 € 69.000
Informazioni immobile
Codice: 539
Contratto: Vendita
Tipologia: Appartamento
Regione: Piemonte
Provincia: Biella
Comune: Biella
Zona: Centro
Prezzo: € 69.000
Totale mq: 90 mq
Camere: 2
Bagni: 1
Locali: 4
Stato conservazione: Ristrutturato
Piano: 1
Riscaldamento: Autonomo
Infissi: legno con doppi vetri
Termosifoni: a muro
Stato attuale: Libero al rogito
Spese condominio: € 50
Disponibile: Si
Esposizione: ovest
Balconi: Presente
Cucina: Abitabile
Posizione: Centrale
Caratteristiche
Antenna Tv: Condominiale
Copertura ADSL:
Copertura Fastweb:
Parquet:
Impianto Telefonico:
Impianto Elettrico: A norma
Doccia:
Infissi in legno:
Persiane:
Nelle vicinanze
Palestre
Centri Benessere
Campi da Calcio
Complessi Sportivi
Campi da Tennis
Piste Ciclabili
Parchi Giochi
Stazione Ferroviaria
Trasporti Pubblici
Asilo
Scuole Elementari
Scuole Medie
Scuole Superiori
Bar
Uffici postali
Centri commerciali
Uffici comunali
Mappa immobile

Ultimo aggiornamento 16-03-2026