Ricerca

Casa di corte in Vendita a Vigliano Biellese

Zona centro
128 mq 2 Camere 2 Bagni Stampa

Classe energetica

F

  EP glnr: 252.87 kwh/m²

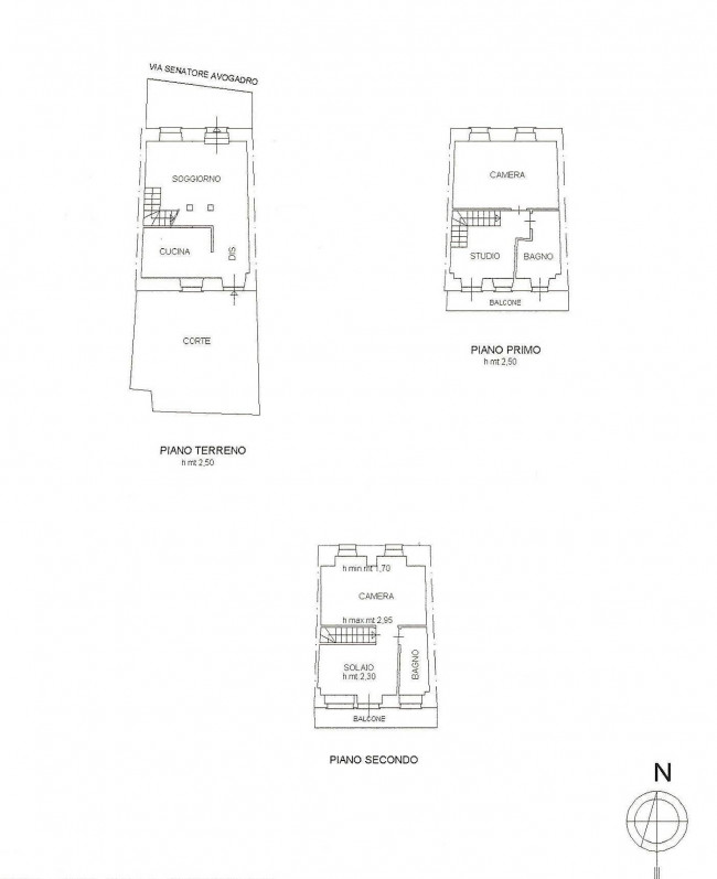
In zona centrale e comoda a tutti i servizi, abitazione su due livelli oltre al piano sottotetto, in parte civilizzato. Piano terreno con ingresso dalla Via Avogadro direttamente in soggiorno con cucina a vista e accesso al terrazzo che affaccia sul cortile interno. Piano primo con ampio disimpegno, camera da letto matrimoniale, bagno con vasca e balcone; piano secondo con un'altra camera da letto, un bagno con doccia, un secondo balcone e una porzione di solaio. Riscaldamento autonomo con caldaia a condensazione e infissi esterni con doppi vetri. Completa la proprietà un'autorimessa di 40 metri quadri con annesso locale cantina/deposito e una porzione di terreno adibita ad orto.

Cod.: 555 € 63.000
Informazioni immobile
Codice: 555
Contratto: Vendita
Tipologia: Casa di corte
Regione: Piemonte
Provincia: Biella
Comune: Vigliano Biellese
Prezzo: € 63.000
Totale mq: 128 mq
Camere: 2
Bagni: 2
Locali: 4
Stato conservazione: Buono
Piano: Multipiano
Piani totali: 3
Riscaldamento: Autonomo
Infissi: in alluminio con doppio vetri
Termosifoni: in ghisa
Stato attuale: Libero al rogito
Disponibile: Si
Esposizione: nord, sud, ovest, est
Balconi: Presente
Terrazzo: Presente, 10 mq
Cucina: Abitabile
Box: Doppio, 40 mq
Posizione: Centrale
Caratteristiche
Terrazza: 20 m²
Antenna Tv: Autonoma
Ripostiglio:
Copertura ADSL:
Parquet:
Impianto Telefonico:
Impianto Elettrico: A norma
Doccia:
Infissi in alluminio:
Persiane:
Nelle vicinanze
Palestre
Centri Benessere
Campi da Calcio
Complessi Sportivi
Campi da Tennis
Piste Ciclabili
Parchi Giochi
Trasporti Pubblici
Asilo
Scuole Elementari
Scuole Medie
Bar
Uffici postali
Centri commerciali
Uffici comunali
Mappa immobile

Ultimo aggiornamento 01-07-2025